06681 - 96 09-0
Referenzen
Einfamilienhaus
Stadthaus
Bauhaus
Mehrfamilienhaus
Anbau
Aufstockung
Haussanierung
Unternehmen
Tradition
Philosophie
Firmenkultur
Werkstatt
Leistungen
Holzbau
Haustechnik
Innenausbau
Fundament
Service
Ihr Weg zum Haus
Planung
Material
Qualität
Förderkredit
Preiskalkulator
Karriere
Aktuelles
Kontakt
Suche
Menü
Menü
Bauhaus 180
Mein Wunschhaus
Bitte wählen
Einfamilienhaus
Stadtvilla
Bauhaus
Mehrfamilienhaus
Anbau
Aufstockung
Haussanierung
Geschosswohnungsbau
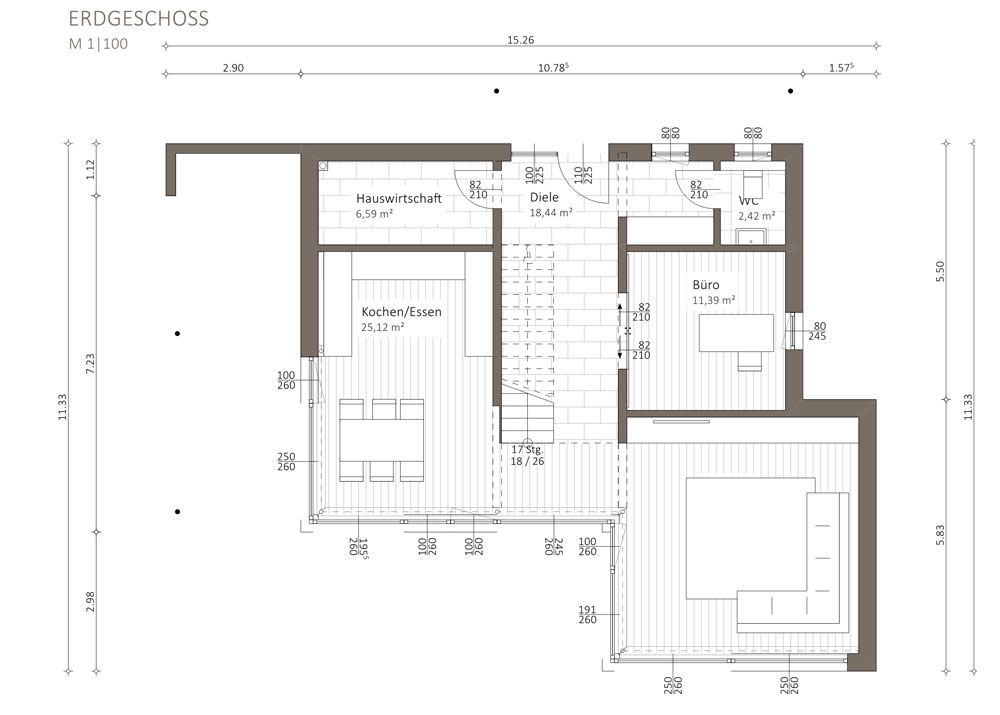
Bauhaus 180
Bauhaus mit 180 m² Wohnfläche.
Zurück
Bauhaus 163
Bauhaus 203
Nach oben scrollen